Bachelorarbeit: Konzeption und Entwurf einer Neugestaltung des Bahnhofsgebäudes in Ennepetal
Von:
Claudia Rybicki
TagsBachelorthesis
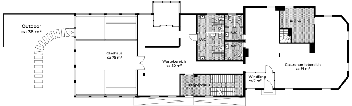
Der Bahnhof in Ennepetal, insbesondere aber das Empfangsgebäude, um welches es sich in dieser Bachelor-Abschlussarbeit handelt, kommt nicht besonders gut an bei den Bewohnern der Stadt Ennepetal und vor allem nicht beiden Menschen, die dort täglich an- und abreisen. Das Gebäude steht seit Jahren leer und wirkt allein durch sein äußeres Erscheinungsbild wenig einladend. Ein Empfangsgebäude sollte aber genau das Gegenteil bewirken und die Reisenden eher dazu anregen, sich gerne im Gebäude aufzuhalten. Sei es, um auf den verspäteten Zug zu warten, einen Kaffee zu trinken, oder sich noch schnell was für die Reise zum Verzehr zu kaufen. Diese Wünsche und einige mehr haben die Menschen, wenn sie sich an einem Bahnhof befinden. Nicht ohne Grund hat die Stadt Ennepetal sich für den Erhalt und gegen den Abriss des denkmalgeschützten Empfangsgebäudes eingesetzt. Mit seinen 173 Jahren ist der Bahnhof ein wichtiger Bestandteil der Industriekultur sowie auch der Bahngeschichte, den es weiterhin zu pflegen gilt. Ziel dieser Thesis war es, dem Gebäude, durch das erarbeitete Konzept und den Entwurf einer Neugestaltung wieder einen Nutzen zu geben. Es soll ein Ort der Begegnung entstehen, in dem die Räumlichkeiten von damals wieder aufgenommen und Teil des urbanen Lebens werden. Durch verschiedene Nutzungsmöglichkeiten soll, zum einen eine größere Zielgruppe erreicht und zum anderen das Gebäude bestmöglich genutzt werden. Nicht nur Reisende und Pendler sollen voll auf ihre Kosten kommen, sondern auch die Bürger und Bürgerinnen der Stadt Ennepetal und der Umgebung. Da es der Stadt an Freizeitangeboten und Orten mangelt, an denen man sich mit seinen Freunden treffen kann, ist dies eine gute Gelegenheit gewesen, solch einen Ort in das Konzept mit einzubauen. Auch die Menschen, die jeden Tag am Bahnhof vorbeifahren, sei es mit dem Auto oder dem Zug, sollen in Zukunft ein Gebäude sehen, welches durch seine Architektur hervorsticht und repräsentativ für seine Entstehungszeit und den Bahnhof steht. Es entstanden drei Farbkonzepte für den Außenraum, die dem Denkmalschutz gerecht werden sowie sich auch der Umgebung anpassen sollten. Durch den Abriss eines Gebäudeteils, ist eine freie Fläche entstanden, auf der nun ein Glashaus entstehen und an das historische Denkmal anschließen soll. Das Konzept erstreckt sich über insgesamt vier Bereiche auf einer Gesamtfäche von ca. 290 m2. Zwei davon befnden sich im historischen Teil des Gebäudes , nämlich die ehemalige Gaststätte und Wartehalle. Diese Räumlichkeiten sollen auch in dem jetzigen Konzept dort platziert werden, wo sie sich ursprünglich befanden. Der 3. und 4. Bereich teilt sich auf in einen Innen- und Außenbereich. Beide gehören zu dem neueren Gebäudeteil, der noch angebaut werden muss. Neben der Wartehalle soll das Glashaus liegen. Von dort aus gelangt man nach draußen in den Outdoorbereich.

Gastronomiebereich:


Wartebereich:


Glashaus:


Outdoorbereich, neuer Anbau und Fassadengestaltung:



Zurück zur Projektübersicht.
Weitere Projekte FARBTECHNIK/ RAUMGESTALTUNG/ OBERFLÄCHENTECHNIK:

Techniken der Restaurierung, Imitation und Dekoration: Imitation einer alten Wand, Schablonierung, Marmorimitation, Linierung
Lena Middeldorf

Gestaltungsmemory Internetcafé
Franziska Kocks

Techniken der Restauration, Imitation, Dekoration: Imitation einer alten Wand, Schablonierung und Marmorimitaion
Janine Köhler
